Ajankohtaista
20.5.2025
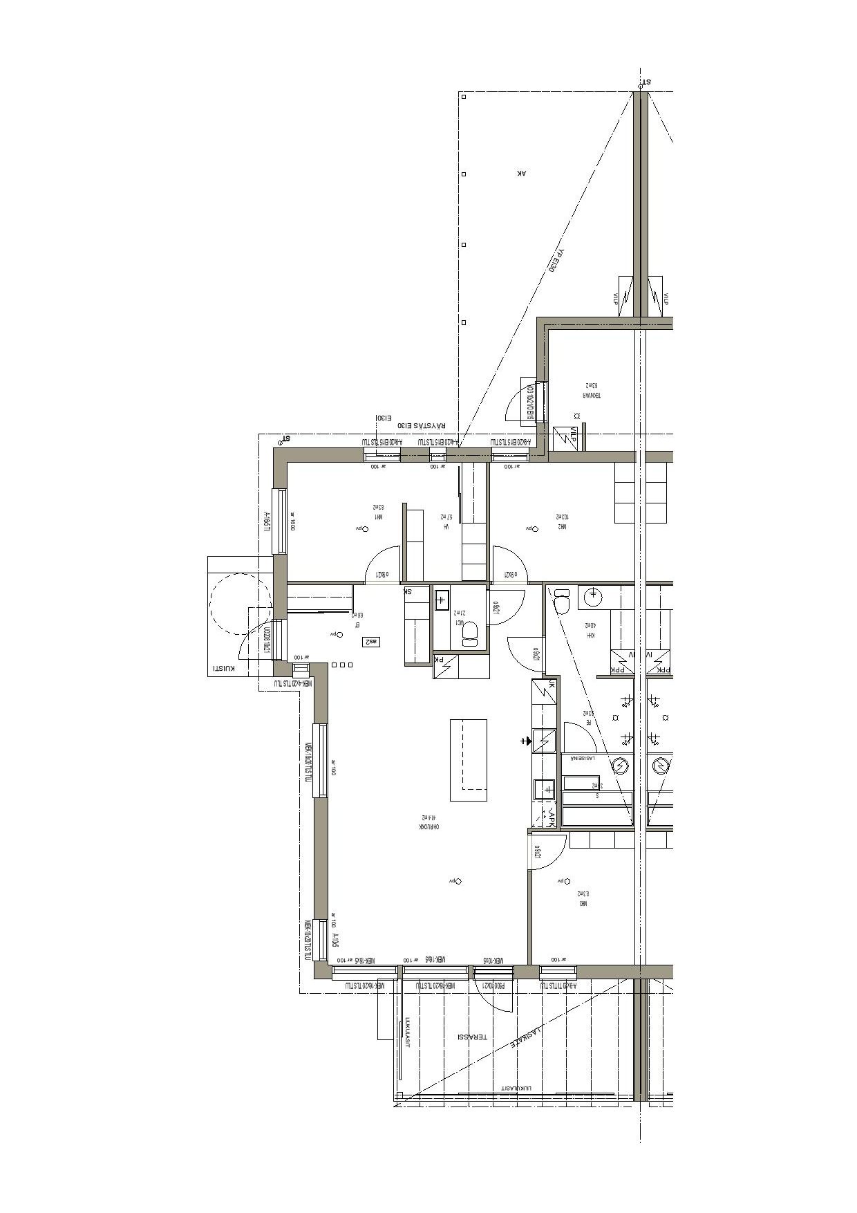
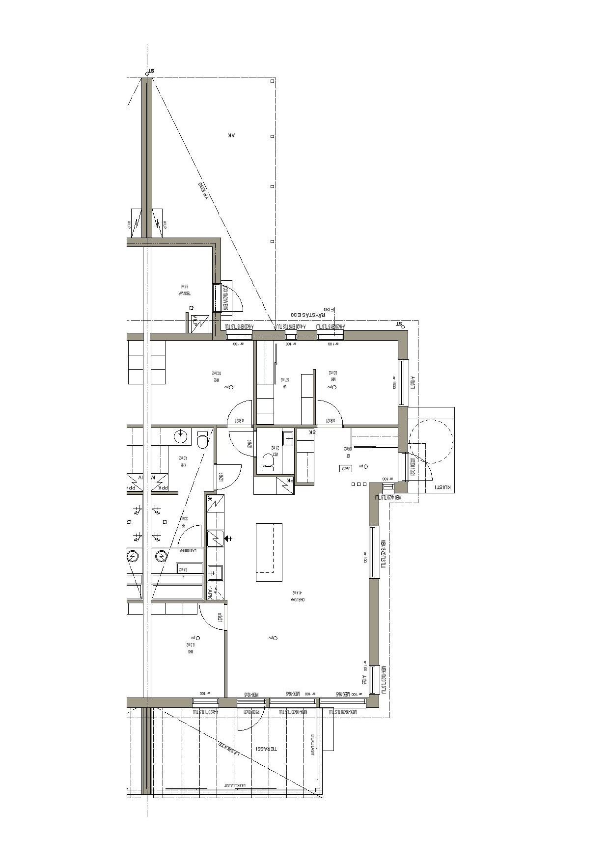
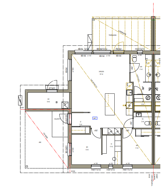
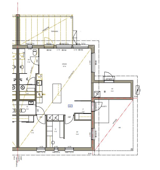
Hakkarin paritalokohteen rakennustyöt etenevät aikataulussa
Hakkarin paritalon rakennustyöt etenevät suunnitellusti ja kohteen on määrä valmistua vuodenvaihteen tienoilla. Alta löydät havainnekuvia ja asuntopohjat, jotka antavat selkeän kuvan asuntojen toimivista pohjaratkaisuista ja laadukkaasta toteutuksesta jo ennen rakennustöiden valmistumista. Kuvat saa suuremmaksi klikkaamalla.








1.11.2024
Uuden paritalokohteen rakennustyöt on aloitettu Lempäälän Hakkarissa
Lempäälän Hakkarissa on aloitettu uuden paritalokohteen rakentaminen. Tähän huolella suunniteltuun kohteeseen valmistuu kaksi 98 asuinneliön, kolmen makuuhuoneen kotia. Oma valoisa, etelään aukeava tontti sijaitsee rauhallisella alueella palvelujen läheisyydessä. Kohde valmistuu loppuvuonna 2025.


31.7.2024

Holvastin paritalon asunnot luovutettu uusille omistajilleen
Kesällä valmistunut paritalo on luovutettu uusille omistajilleen sovitussa aikataulussa. Huolella suunnitellut ja korkealaatuisesti toteutetut kodit tarjoavat modernia asumismukavuutta uusille asukkaille. Referenssit -sivulle lisätty kuvia kohteesta.
20.11.2023
Holvastin paritalon rakennustyöt etenevät suunnitellusti kohti sisätyövaihetta
Kesäkuussa aloitetut rakennustyöt ovat edenneet suunnitellusti ja kohde valmistuu aikataulun mukaisesti keväällä 2024.




28.07.2023

Uuden paritalokohteen rakennustyöt on aloitettu Tampereen Holvastissa
Puistoalueeseen rajoittuvalle tontille rakennetaan yksitasoinen laadukas paritalo, jonka huoneistot ovat kooltaan 77 m2 ja huonejakaumaltaan 3h+k+s.
Huoneistoon kuuluu lasikatteinen terassi, lämmin varasto ja autokatos, josta on suojaisa sisäänkäynti asuntoon. Kiinteistömuotoisen paritalon molemmilla asunnoilla on omat piha-alueet sekä omat liittymät ajotieltä.
Asuntoihin tulee avara hyvä pohjaratkaisu, joka mahdollistaa myös sujuvan etätyöskentelyn.
Arvioitu valmistuminen on vuoden 2024 keväällä.






04.11.2022

Pikonkankaan paritaloasunnot on luovutettu uusille omistajilleen
Pikonkankaan kohde on valmistunut ja molemmat asunnot on luovutettu kotien uusille omistajille. Kohde valmistui alkuperäisen suunnitelman mukaisesti syksyllä 2022. Valokuvia kohteesta lisätty Referenssikuvat-välilehdelle.
15.09.2021

Pikonkankaan paritalon maanrakennustyöt ovat alkaneet.
Uuden kiinteistömuotoisen paritalokohteen perustustyöt on aloitettu syyskuussa 2021 Kangasalan Pikonkankaalla. Alue on erinomaisella paikalla Kangasalan keskustan ja Lentolan palveluiden välissä.
Kohde sijaitsee rauhallisen päättyvän tien päässä, isolla omalla tontilla, joka rajautuu puistoalueeseen.
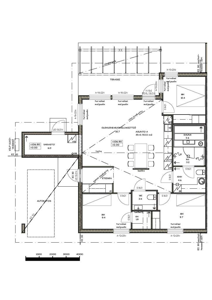
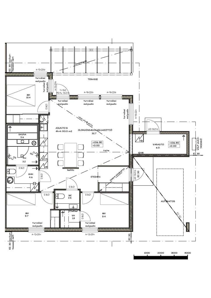
- Asunnot ovat yksitasoisia.
- Huonejakaumaltaan 4h+k+vh+s ja pinta-alaltaan 93 m2.
- Isot lounaaseen ja hoidetun puistoalueen suuntaan avautuvat terassit.
- Noin 6m2 lämmin varasto sekä oma autokatos.
- Molemmissa huoneistoissa omat vesikiertoiset Warmian lattialämmitysjärjestelmät, joiden lämpö tuotetaan energiatehokkailla vesi-ilmalämpöpumpuilla.


Mikäli olet kiinnostunut kohteesta, voit ottaa yhteyttä alla olevan lomakkeen kautta. Sovitaan tutustumiskäynti ja keskustellaan kohteesta lisää.


